Skip to content
About
Services
Projects
Careers
Insights
Contact
Menu
About
Services
Projects
Careers
Insights
Contact
Schedule Meeting
Login
Register
Menu
Login
Register
About
Services
Projects
Careers
Insights
Contact
Menu
About
Services
Projects
Careers
Insights
Contact
Schedule Meeting
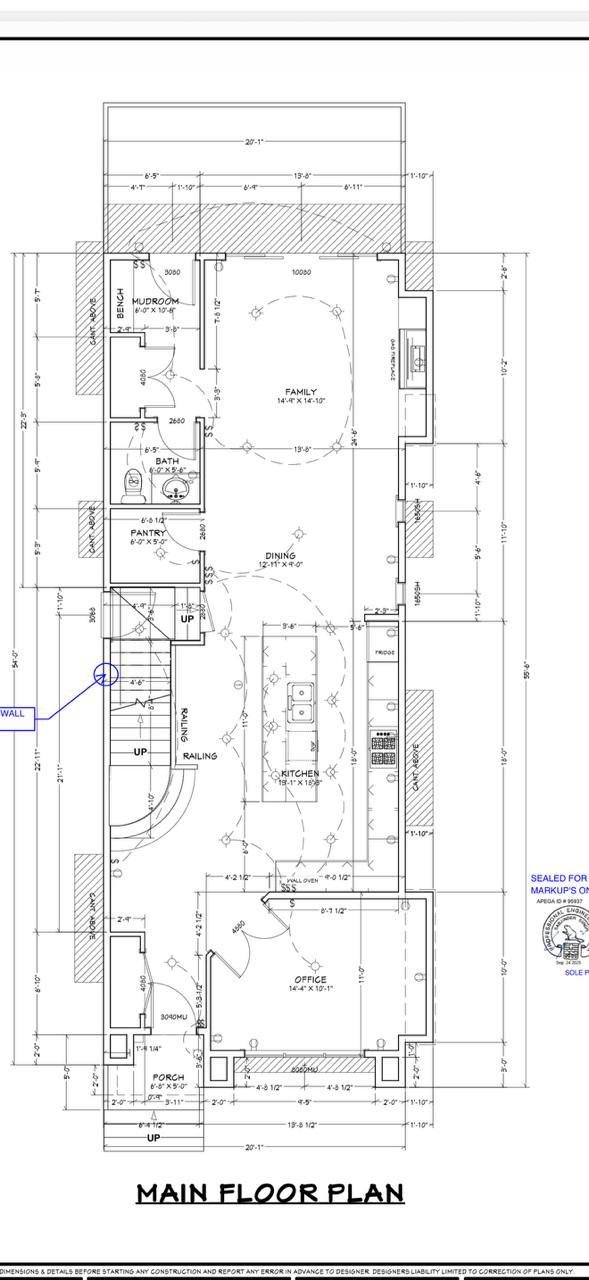
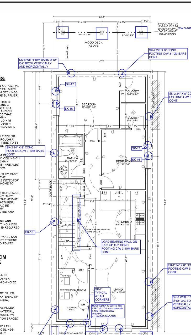
2221, 2223 Halifax Crescent NW
Home
2221, 2223 Halifax Crescent NW